BEL IMMEUBLE AUX NORMES URBANISTIQUE ET INCENDIE
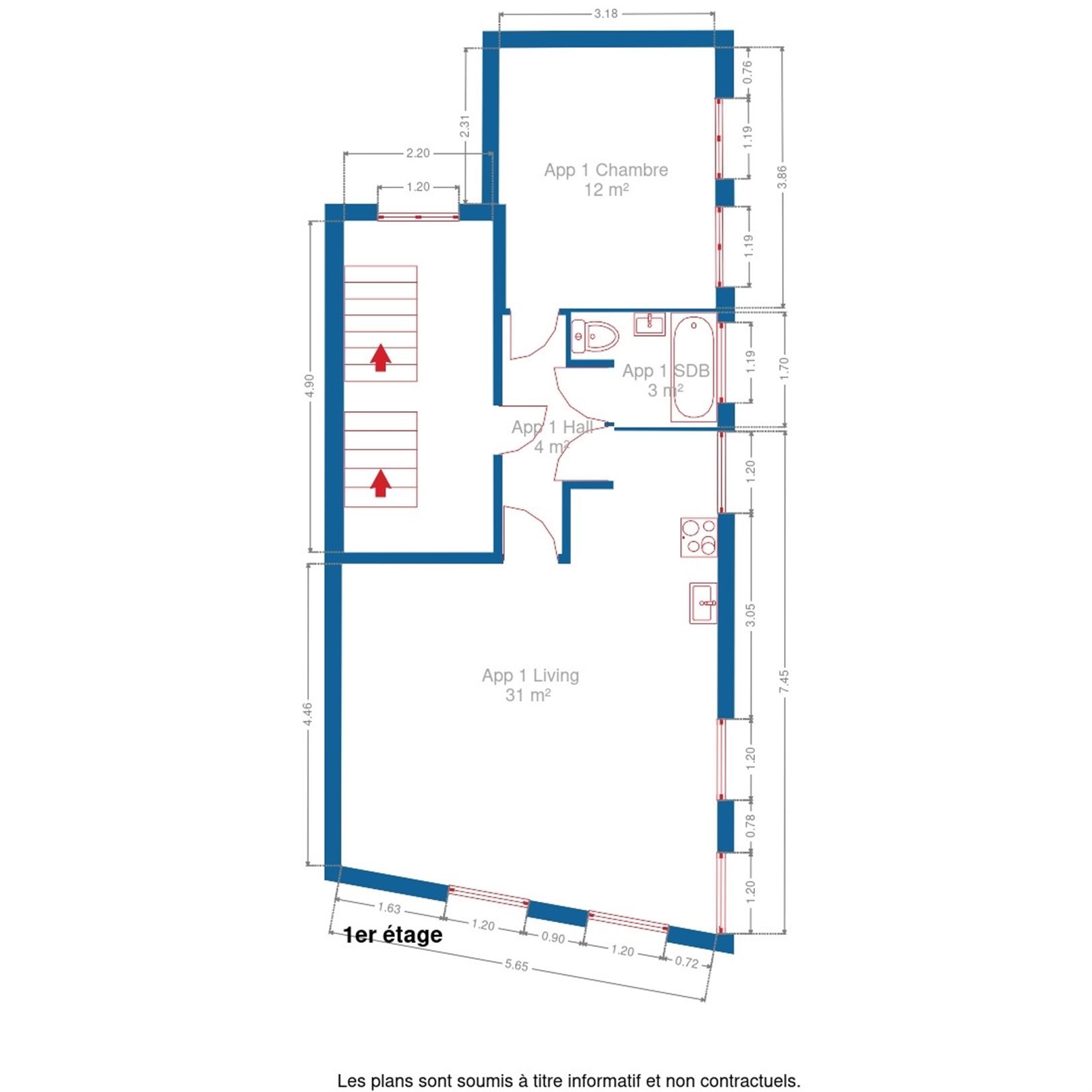
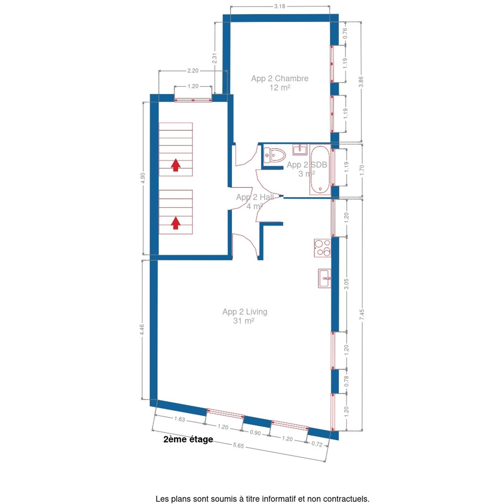
Le bâtiment comprend 4 entités, 1 surface commerciale et 3 appartements 1 chambre.
Tous les entités sont actuellement loués. Revenu locatif cumulé de €3.030/mois.
Rentabilité actuelle de +/-3,80% NET.
Immeuble bien situé le long de l'Escaut, entre le centre-ville et la gare.
Hourdis béton entre chaque étage.
Pas de travaux à prévoir.
Dossier disponible sur demande.
Vous cherchez un immeuble sans tracas avec une belle rentabilité locative, n'hésitez pas à nous contacter pour organiser une visite!

Vivre près de la Rue Royale offre un cadre de vie pratique, avec un accès facilité aux commerces, transports et services essentiels.
Un parc de loisirs est accessible en 4 minutes de route : "Ecopark Adventures".
Il faut 3 minutes pour rejoindre le musée "Musée De Folklore Et Des Imaginaires".
Envie de visiter un zoo ? Vous trouverez "Folles Histoires De Tournai" à 1 minute de route.
En 1 minute de route, vous pourrez atteindre l'activité "Site De La Pierre Au Ciel".
À 27 minutes de là se trouve le château "Château De Beloeil".
À seulement 2 minutes à vélo, "Ecole Libre Fondamentale De La Sainte-Union" regroupe une école maternelle / école primaire, idéal pour les trajets en famille.
Pas besoin de prendre la voiture pour l'école : la crèche "Le Clair Matin" est à 2 minutes à pied.
Vos enfants pourront se rendre à pied à l'école secondaire "Centre Educatif De La Sainte-Union", à seulement 1 minute de marche.
Côté courses, vous êtes bien servi avec plusieurs options à proximité : "Carrefour Express Tournai" (1 minute à pied ou 1 minute en voiture), "Colruyt Tournai" (5 minutes à pied ou 1 minute en voiture), "Shop & Go Delhaize Nerviens (Tournai)" (8 minutes à pied ou 3 minutes en voiture).
Pour vos trajets quotidiens, vous avez le choix entre plusieurs lignes de bus : TEC Hainaut - 1 - Tournai - Mouscron/Moeskroen, TEC Hainaut - 4 - Tournai - Baisieux, TEC Hainaut - K - Tournai City : Tournai - Kain avec un arrêt situé à 3 minutes à pied.
En moins de 2 minutes, vous trouverez une station de recharge pour votre véhicule électrique.
Un double accès autoroutier pratique : les autoroutes A16 / E42 (Mons - Tournai) et A8 / E429 - E42 (Halle - Tournai - (Lille, France)) sont accessibles en 5 minutes.
Un week-end improvisé ou un déplacement professionnel ? La gare "Doornik / Tournai" est à moins de 3 minutes en voiture.
Grâce à la station "Cambio - Reine Astrid", vous pourrez louer une voiture quand vous en avez besoin, accessible en moins de 8 minutes à la marche.
Les automobilistes rejoindront Wattrelos en 20 minutes, pratique pour le quotidien. Valenciennes reste facilement accessible en voiture, à 39 minutes de trajet. Besoin de rejoindre Douai pour le travail ou les loisirs ? Comptez environ 41 minutes en voiture.
La présence de commerces, d'écoles et de transports à proximité facilite l'organisation du quotidien.